Baugrundstück in gewachsener Lage – ca. 690 m² für Ihr neues Zuhause




| Objektnummer | HC082K |
| Nutzungsart | wohnen |
| Vermarktungsart | kauf |
| Objekttyp | Wohnen |
| Objektart | Grundstück |
| PLZ | 27327 |
| Ort | Schwarme |
| Grundstück (ca.) | 690m² |
| Balkon | Nein |
| Stellplatz | Nein |
| Aktueller Kaufpreis | 79.000,00 € |
| Erfolgshonorar | Im Erfolgsfall ist vom Käufer ein Erfolgshonorar in Höhe von 5,95 % vom Kaufpreis inkl. MwSt. zu zahlen |
OBJEKTBESCHREIBUNG
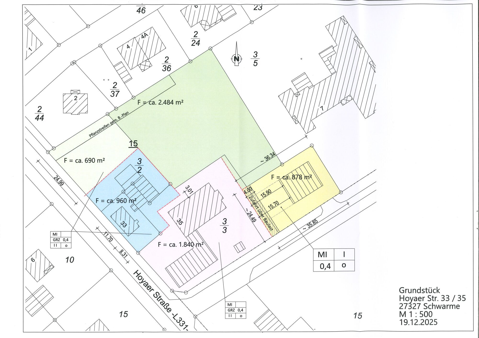
Die angebotenen Einheiten befinden sich auf einem zusammengehörigen Gesamtareal und werden aktuell getrennt veräußert. Ein Erwerb einzelner Teilbereiche oder des gesamten Ensembles ist möglich und eröffnet vielfältige Nutzungsperspektiven.
Das angebotene Baugrundstück umfasst die linke, hellgrün dargestellte Teilfläche mit einer Größe von ca. 690 m² und befindet sich innerhalb eines gewachsenen Wohnumfelds.
Das Grundstück liegt im Geltungsbereich eines rechtskräftigen Bebauungsplans und ist als Mischgebiet MI ausgewiesen. Zulässig ist die Bebauung mit einem freistehenden Einfamilienhaus in offener Bauweise.
Die Grundflächenzahl von ca. 0,4 ermöglicht eine Bebauung mit ausreichender Wohnfläche bei gleichzeitig großzügigem Gartenanteil. Eine Bebauung mit bis zu zwei Vollgeschossen ist möglich, wodurch sich flexible Gestaltungsmöglichkeiten für ein modernes Wohnhaus ergeben.
Durch die Lage in erster Reihe mit direkter Anbindung an die Erschließungsstraße bietet das Grundstück ideale Voraussetzungen für eine unkomplizierte Bebauung.
Die Grundstücksgröße stellt einen optimalen Kompromiss zwischen Wohnkomfort und Pflegeaufwand dar und spricht insbesondere Käufer an, die ein gut nutzbares, überschaubares Grundstück in gewachsener Lage suchen.
SONSTIGES
SCHON GEWUSST...?
Wir veröffentlichen unsere Immobilienangebote zuerst auf unserer Website. Die Vermarktung in den bekannten Immobilienportalen findet – sofern erforderlich – bis zu einer Woche später statt.
Alle Immobilien finden Sie auf www.hechler-twachtmann.de. Sie möchten zukünftig kein Angebot verpassen? Dann legen Sie einfach ein Suchprofil an – ebenfalls online auf unserer Website.
Dieser Service ist kostenfrei und unverbindlich. Es gelten die AGB's.
LAGE
Der Bauplatz befindet sich in der Gemeinde Schwarme, einer idyllisch gelegenen Ortschaft in der Samtgemeinde Bruchhausen-Vilsen im niedersächsischen Landkreis Diepholz. Die Region ist geprägt von einer ruhigen, ländlichen Wohnstruktur und bietet gleichzeitig eine gute Anbindung an die umliegenden Städte.
Schwarme liegt in der attraktiven Mittelweserregion, etwa 30 Kilometer südlich von Bremen, und profitiert damit von der Nähe zur Metropolregion bei gleichzeitig hohem Erholungswert.
Die umliegenden Städte Achim, Verden (Aller), Syke und Hoya sind jeweils in etwa 15–20 Minuten erreichbar und bieten eine umfassende Infrastruktur mit Einkaufsmöglichkeiten, Schulen, medizinischer Versorgung sowie Freizeitangeboten.
Der Landkreis Diepholz selbst zeichnet sich durch eine ausgewogene Mischung aus ländlicher Ruhe und wirtschaftlicher Nähe zum Bremer Umland aus. Insbesondere der nördliche Teil des Landkreises gilt als gefragter Wohnstandort im erweiterten Einzugsgebiet der Hansestadt Bremen.
Die Umgebung von Schwarme ist landschaftlich geprägt von weitläufigen Wiesen, Feldern und kleinen Waldflächen, wodurch sich vielfältige Möglichkeiten zur Naherholung direkt vor der Haustür ergeben. Gleichzeitig sorgt die verkehrliche Anbindung über das regionale Straßennetz für eine gute Erreichbarkeit der umliegenden Wirtschaftszentren.
Insgesamt bietet die Lage eine gelungene Kombination aus naturnahem Wohnen, gewachsener Dorfgemeinschaft und gleichzeitig guter Anbindung an die städtische Infrastruktur.
IHR/E ANSPRECHPARTNER/IN
Frau Corinna
Henneke
Hechler & Twachtmann Immobilien GmbH
Blockener Straße 4
28816 Stuhr
Tel.: 0421 957 008-18 Fax: 0421 957 008-19






